- Nombre del Proyecto: Casa Cachagua FR
- Ubicación del Proyecto: Cachagua, Comuna de Zapallar, V Región.
- Arquitectos a cargo: Giovanni Candelori + Biourban.
Esta vivienda unifamiliar de dos pisos, ubicada en Cachagua, se organiza para disfrutar de las vistas del entorno visible en áreas privadas y públicas. El acceso posterior, genera una entrada a través de un puente que recorre el paisaje. Al ingresar, la vivienda se abre hacia las amplitud de vistas integrándolo al interior del Living facilitando una fluida interacción entre los distintos ambientes, también completa la casa con luz natural y vistas para dormitorios en un segundo nivel, utilizando sistemas de quiebravistas para un control solar preciso, creando un ambiente controlado, luminoso y ventilado. La orientación estratégica de la casa sigue el recorrido solar, maximizando la iluminación natural y optimizando el confort térmico en las zonas más frecuentadas durante el día.
El área pública, el living y acceso destaca por su doble altura, generando una sensación de amplitud y luminosidad. Este diseño no solo mejora la interacción visual entre los dos niveles de la casa, sino que también aporta dinamismo y un ambiente acogedor. La estructura combina muros de hormigón en las zonas de doble altura con acero y metalcón en el resto de la construcción, logrando un equilibrio entre solidez y ligereza.
- Acceso
- Acceso
- Vista lateral 2
- Interior Living-comedor
- Interior escala
- Vista Lateral 1
- Vista frontal
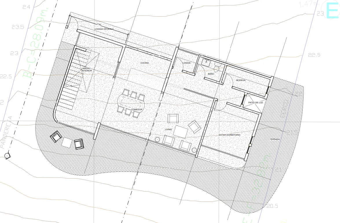
- Planta nivel 1
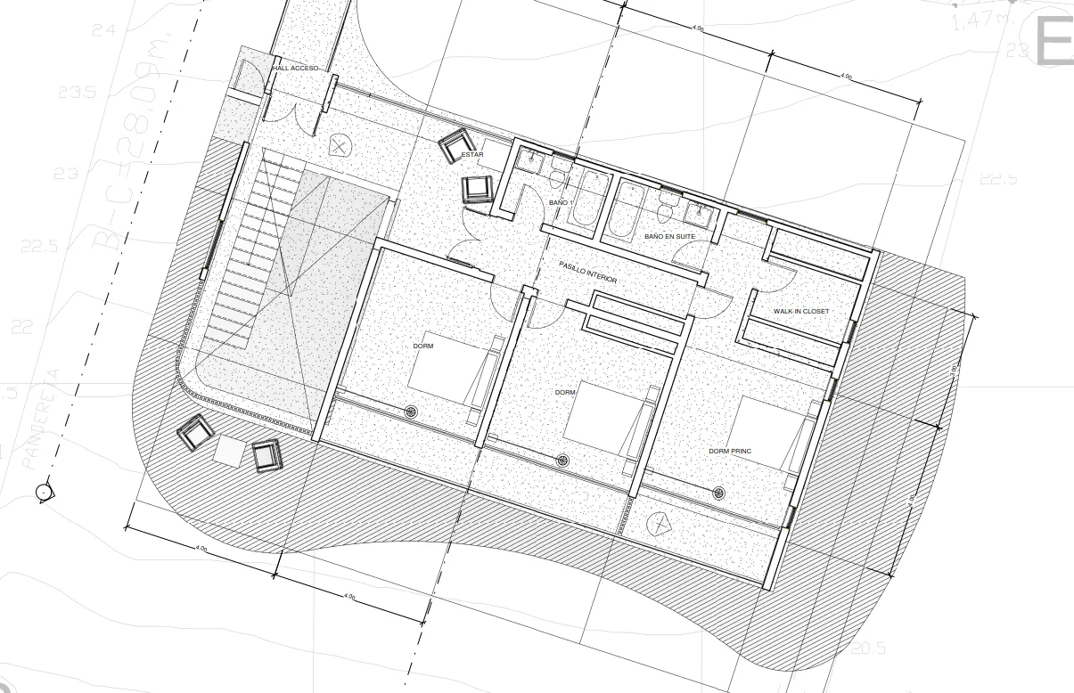
- Planta nivel 2











