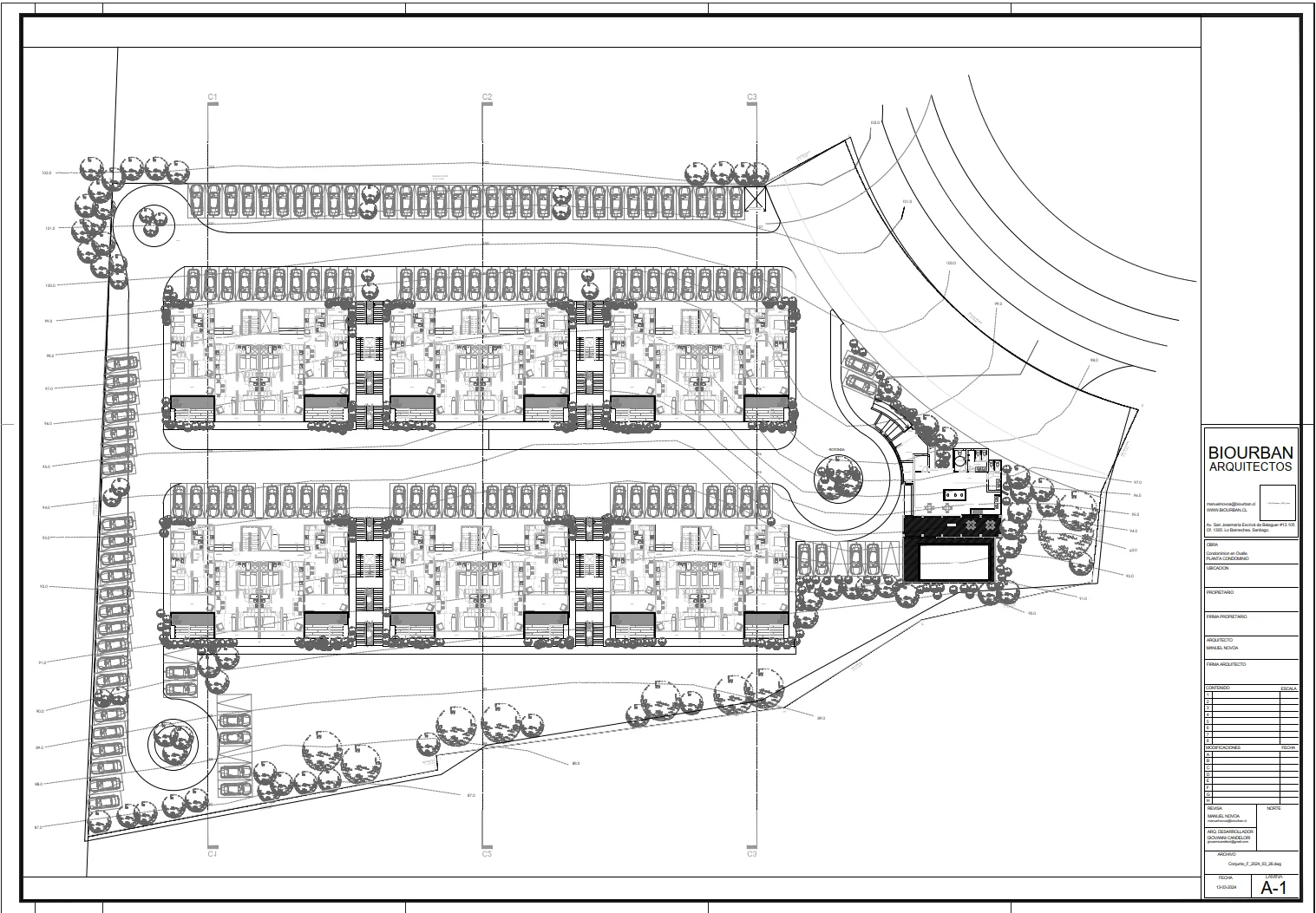
- Nombre del Proyecto: Condominio Sustentable Industrializado.
- Ubicación del Proyecto: Ovalle, Chile.
- Oficina: Biourban Arquitectos
- Creación de nuevos barrios sustentables en Ovalle. Conjunto de 6 torres de baja altura
- Edificios de 3 y 6 pisos
- Eficiencia Energética
- Áreas verdes y servicios
- Construcción rápida, sustentable
- Arquitecto: Giovanni Candelori + Biourban.

- Conjunto hab. 1
- Edificios en altura
- Conjunto hab.
- Camino interior
- Vista exterior 1
- Vista desde áreas comunes
- Edificios y terrazas
- Conjunto hab. 2
- Rotonda
- Edificios bajos
- Zonas de acceso
- Conjunto hab.
- Quincho
- Quincho y piscina
Condominio sustentable industrializado en Ovalle
















