- Nombre del Proyecto: Local comercial Makani Shawarma
- Ubicación: Metro universidad católica, Santiago centro.
- Arquitecto: Giovanni Candelori M.
Para el desarrollo del local comercial «Makani Shawarma» era necesario buscar una nueva imagen, más actual y moderna. En donde era importante mezclar lo mejor de la iconografía de Egipto, su gastronomía y un diseño limpio, actual, estilo comida rápida saludable.
Se interviene un local comercial en mal estado; 2 pisos a transformar donde se incluye diseño interior, desarrollo de sala de ventas y entrega, cocina, área de mesas, baños y salas privadas para eventos específicos.
La solicitud era marcar la diferencia con un diseño que mostrara algo novedoso y viral para obtener una experiencia de agrado mientras los clientes consumen.
Los resultados fueron logrados y hoy Makani atiende con mucho público en todo horario.
VIDEOS:
Ver esta publicación en Instagram
Ver esta publicación en Instagram
Imágenes Local comercial ANTES:
Proceso de diseño, PLANOS Y RENDERS:
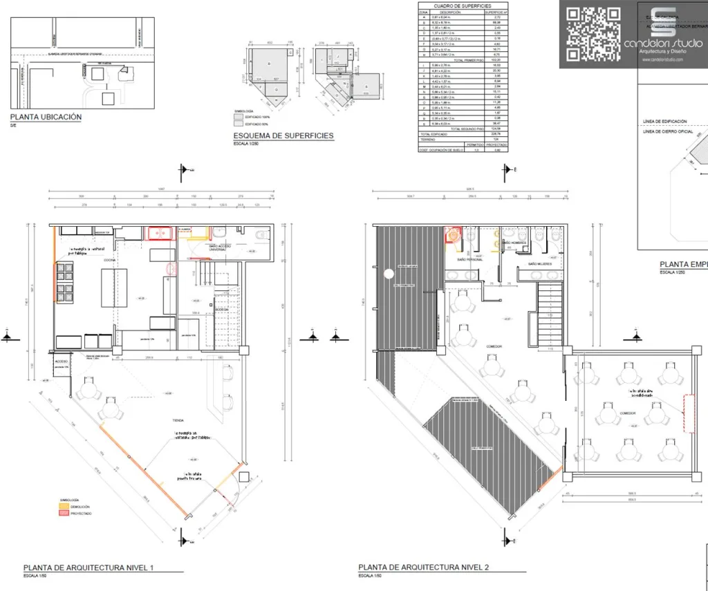
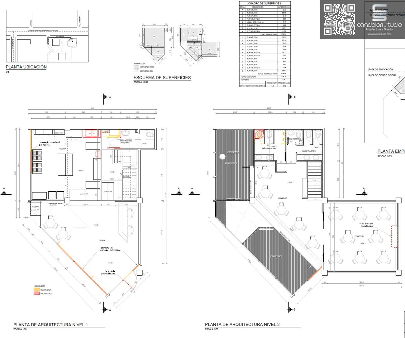
- Planimetría
- Planimetría
- Planimetría
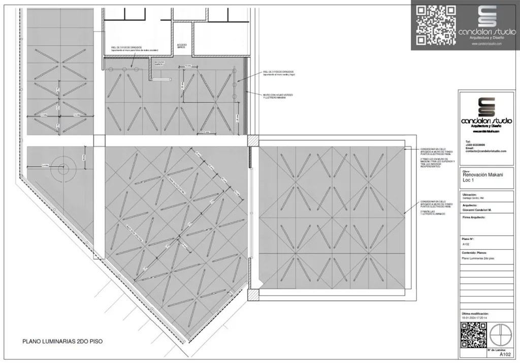
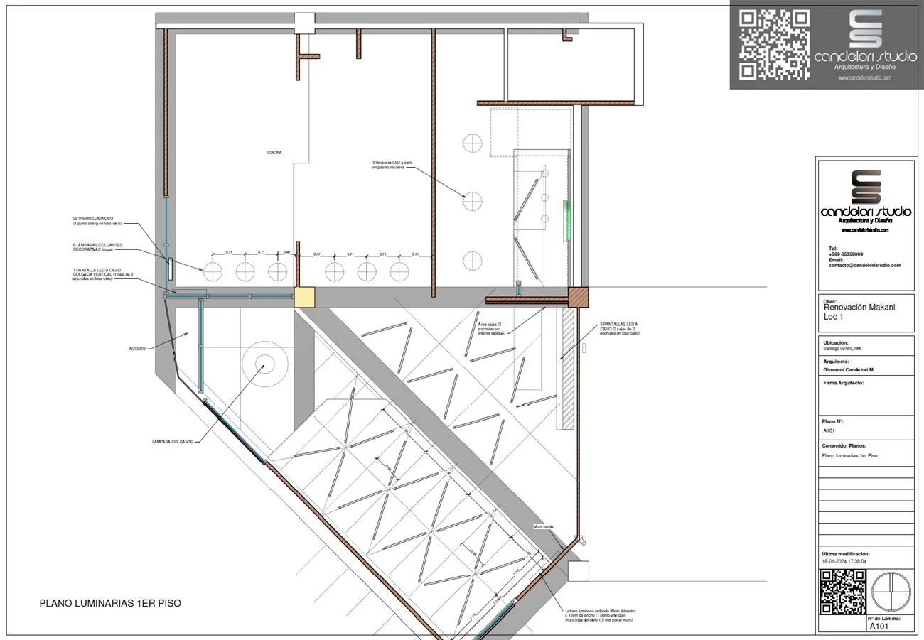
- Esquemas dist. luminarias
- Mueble caja
Imágenes PROCESO CONSTUCTIVO:
Imágenes RESULTADO FINAL:




















































