- Nombre del Proyecto: Masterplan Papudo
- Ubicación del Proyecto: Papudo, Chile.
- Arquitectura: Giovanni Candelori M. + Biourban.
Creación de nuevos barrios en una ubicación estratégica dentro de la comuna de Papudo.
Proyecto situado a pocos pasos de servicios, parques y áreas comerciales, nuestra propuesta busca establecer un espacio que fomente la continuidad entre los barrios existentes de la comuna. Los accesos principales están ubicados en el sector norte, una zona de excelente conectividad y cercanía a servicios esenciales.
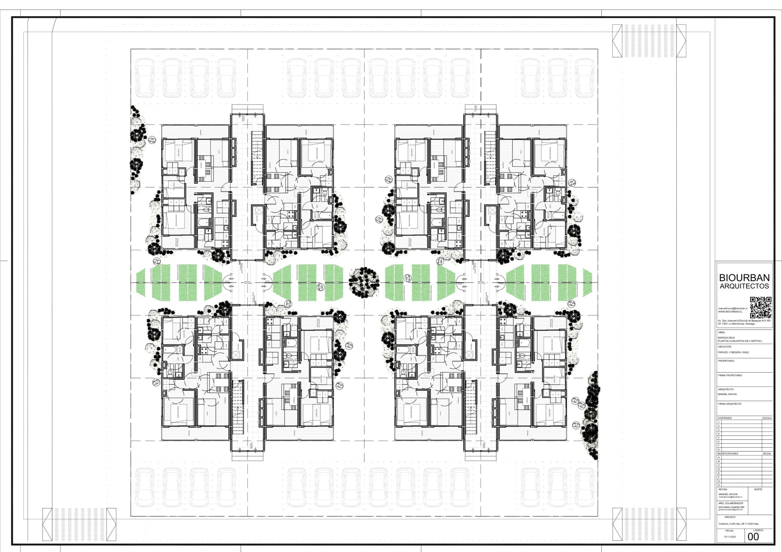
Contemplamos la construcción de 240 departamentos distribuidos en edificios de baja altura (4 pisos) y 50 casas pareadas de 2 pisos. Nuestro enfoque se basa en la implementación de tecnología de vanguardia mediante sistemas modulares industrializadas que permiten una fabricación y construcción rápida, manteniendo altos estándares de calidad.
Manzana: Desarrollo de microbarrios mixtos:
La entremezcla permitirá realizar una mixtura de departamentos entre torres dando origen a nuevos barrios en cada conjunto.
La inmediatez de las relaciones sociales se fomenta con áreas comunes dentro y fuera de cada edificio, con áreas para huertos comunitarios, espacios de recreación y jardines transitables entre edificios.














